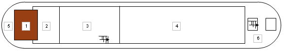
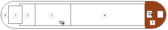
Rondleiding Het Schip Beschrijving van het Schip Interieur 1. Stuurhut 2. Roef 3. Machinekamer 4. Kombuis 5. Ruim 6. WC 7. Vooronder Interieur 1. Wheelhouse 2. Robbery cover 3. Black cover (steel) 4. Slatted deck 5. aft deck 6. Foredeck Het Schip Beschrijving van het Schip